
































✨ Architectural Elegance Meets Everyday Luxury ✨
Kamal Mann from Urban Habitat is proud to present this stunning 2022-built residence to the market. Sophisticated design, luxurious finishes, and absolute convenience come together in a home that defines modern living. With architectural street appeal and interiors that rival any display home, every detail has been carefully considered to balance functionality with elegance, creating a space that is as practical as it is beautiful.
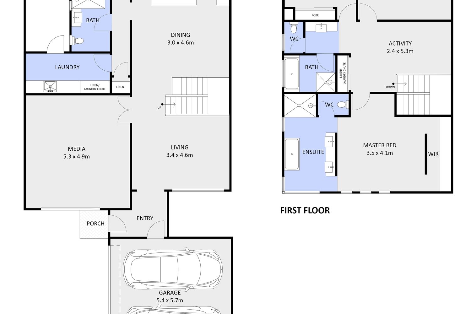
As you step inside, the bold façade opens to light-filled interiors where open-plan living takes centre stage. The chef’s kitchen is a masterpiece, featuring a waterfall stone island bench, premium Bosch appliances, sleek cabinetry, and a striking stone splashback. A newly installed water filtration system ensures pristine drinking water every day, while the seamless flow from kitchen to dining and living areas creates the ultimate hub for entertaining and family gatherings. A guest bedroom with bathroom access on the ground floor adds flexibility, making it ideal for multi-generational living or hosting visitors in style.
Upstairs, the home transforms into a private retreat designed for relaxation. The master suite delivers a resort-style experience with double vanities, vessel basins, full-height tiling, a frameless walk-in shower, and sleek black fixtures. Additional bedrooms are generously proportioned, while a versatile second living space offers options for a home office, kids’ playroom, or quiet lounge.
Outdoors, a private backyard with fresh lawn provides the perfect balance of low maintenance and lifestyle, ideal for children, pets, or weekend entertaining. A secure double garage with a wide driveway ensures ample parking and storage, while the modern architectural façade delivers striking street presence that sets the tone for the contemporary lifestyle within.
Year-round comfort is assured with reverse-cycle air conditioning throughout, complemented by the home’s modern finishes, stylish accents, and timeless design features. From timber staircase detailing to the seamless blend of textures in the bathrooms and kitchen, every element reflects quality craftsmanship. Located just steps from Leach Highway for easy commuting and close to shopping, schools, and public transport, this residence is the epitome of convenience and sophistication.
✨ You don’t want to miss this – get in touch today on 0469 735 397 to arrange your private inspection. This residence is more than just a beautifully crafted home — it’s a place where luxury meets everyday comfort, where style blends seamlessly with practicality, and where every detail has been designed to elevate your lifestyle.
From effortless entertaining to peaceful retreats, from family gatherings to quiet moments, this home adapts to the way you live. Perfectly positioned for convenience and finished to the highest standard, it offers a rare opportunity to secure not just a house, but the lifestyle you’ve been dreaming of.
Because at the end of the day, this isn’t just a house — it’s a lifestyle.
Urban Habitat has no reason to doubt the accuracy of the information listed above which has been sourced by means which are considered reliable, however we cannot guarantee accuracy from third party sources. Prospective purchasers are advised to carry out their own due diligence
Subscribe to get the latest insider tips, market updates and access to the hottest deals as they come on the market.