



































This much-loved double-brick and tile residence offers exceptional space, quality construction, and a lifestyle that’s hard to beat. With the charming riverside café only moments away, every day feels like a peaceful retreat.
Lovingly held by the same family who originally built it, the home has been beautifully maintained and showcases timeless craftsmanship — from solid cabinetry to decorative cornices and enduring quality finishes.
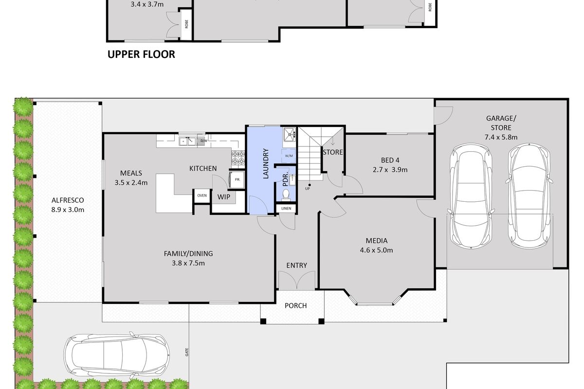
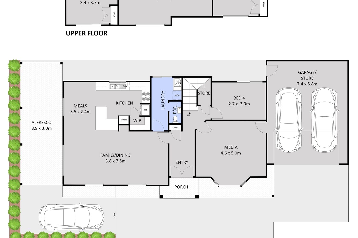
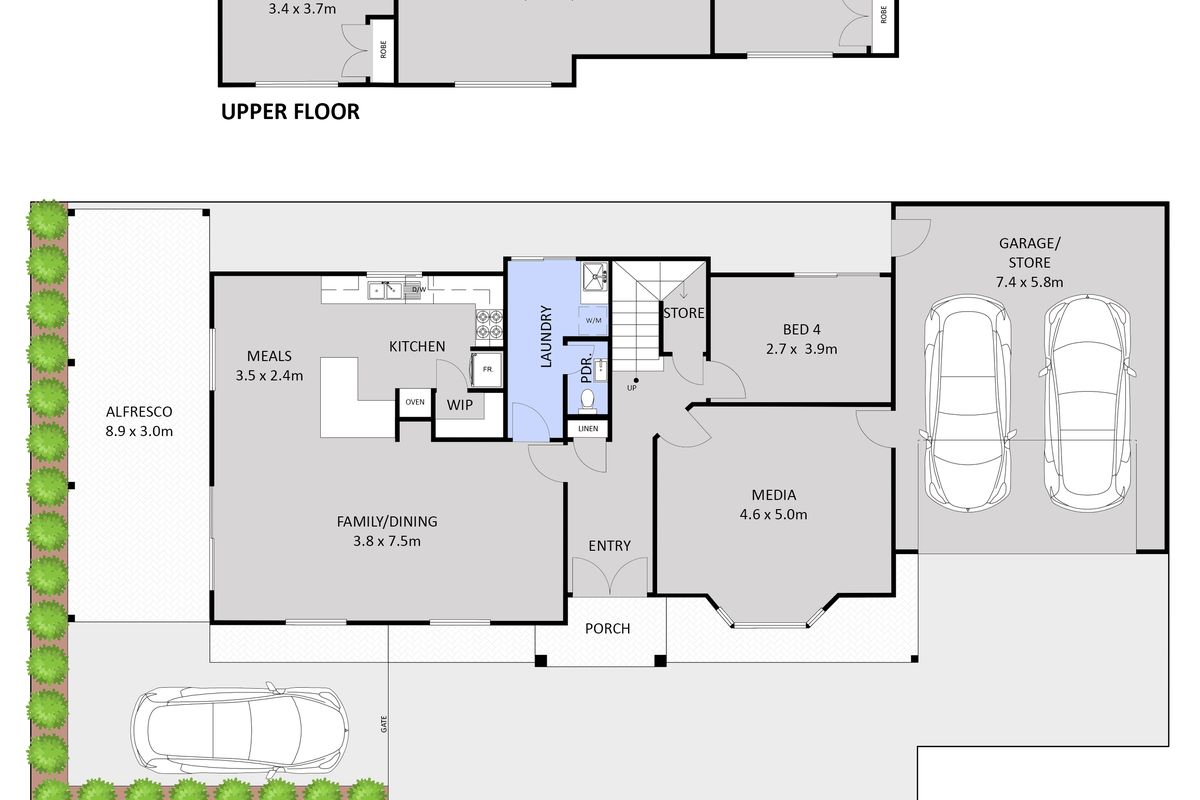
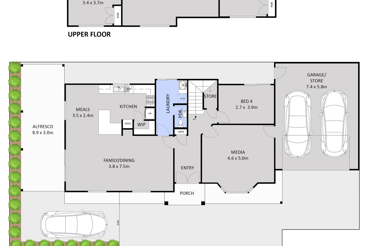
Downstairs Features
•Large theatre room ideal for movie nights or a quiet escape
•A spacious downstairs bedroom perfect for guests, teenagers, or multi-generational living
•Open-plan living and dining area that flows to the outdoor patio
•Solid, well-designed kitchen with walk-in pantry, elevated oven (no bending!), abundant storage, and excellent workspaces
•Separate laundry and additional toilet for everyday convenience
•Undercover outdoor entertaining area/patio perfect for summer gatherings
Upstairs Retreat
•Expansive entertainment/living zone — a rare and impressive second-storey space
•All upstairs bedrooms flow from this central upstairs hub, making it perfect for families
•Plush carpets and large built-in wardrobes in every bedroom
Extra Features You’ll Love
•Extra vehicle space for a caravan or boat — incredibly rare in this riverside pocket
•Security screens and roller shutters for peace of mind
•Security alarm
•Quality wood flooring lending warmth and character
•Tiled roof and solid double-brick construction for lasting durability
•Ducted reverse-cycle air-conditioning for year-round comfort
Location Highlights
If you’re dreaming of a peaceful riverside lifestyle without compromising on convenience, Shelley is one of Perth’s true hidden gems. Nestled along the tranquil banks of the Canning River, this suburb offers a rare blend of natural beauty, family-friendly living, and premium amenities that make everyday life feel a little more special. Imagine morning walks along the foreshore, kids playing in leafy parks, and weekends spent kayaking on calm waters just minutes from home. Shelley’s serene atmosphere is matched by a strong sense of community — it’s the kind of place where neighbours say hello, streets feel safe, and families settle in for the long term.
Families are especially drawn here thanks to its access to one of WA’s most sought-after schooling zones, including the highly regarded Rossmoyne Senior High School. Combine that with great local conveniences like Shelley Hub Shopping Centre, easy transport links, and proximity to Curtin University, and it’s easy to see why Shelley holds such enduring appeal.
This home is the perfect choice for buyers seeking quality, lifestyle, and long-term value in a premium riverside setting. Call Kamal Mann on 0469 735 397 today for more information!
Financials:
•Annual Water Rates Approx.:$1,450.24
•Occupancy: Owner occupied
•Sellers Preferred Settlement Terms:ASAP
Urban Habitat has no reason to doubt the accuracy of the information listed above which has been sourced by means which are considered reliable, however we cannot guarantee accuracy from third party sources. Prospective purchasers are advised to carry out their own due diligence
Subscribe to get the latest insider tips, market updates and access to the hottest deals as they come on the market.